Multidwelling Infill Prototypes

Portland, Oregon

 

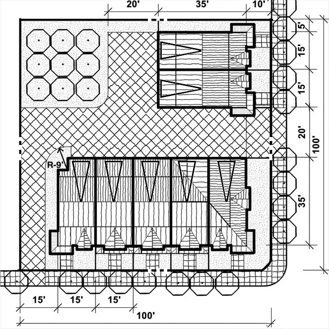
The Multidwelling Prototypes were a product of the City of Portland Bureau of Planning’s “Infill Design Project.”  The objective of the Infill Design Project was to improve the design of multidwelling and rowhouse development in neighborhoods outside Portland’s Central City, while considering impacts on housing costs, the environment and function for residents.  

The prototypes were intended to serve as exemplary models for future development  in low- and medium-density multidwelling zones and serve as a “path of least resistance” incentive for builders and developers, providing the advantage of regulatory certainty by illustrating configurations that were approvable under various City regulations. 

Results

  • Illustrated how “missing middle” housing could be built elegantly in low- and medium-density zones.

  • Became the foundation for sweeping zoning reforms Portland enacted between 2020 and 2024.

  • Since the 2021-2022 zoning updates, 73% of all new units permitted in affected zones are “middle housing” (duplexes, triplexes, and fourplexes) rather than single houses.